Telephone: 029 2025 7560
Email: info@alunarthur.co.uk

Projects

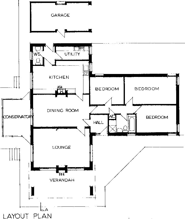
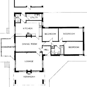
New House in Bridgend

Description

An individual bungalow built on an agricultural holding – the Planning Department limited the size and scale to single storey. The site is set in open countryside and affords tremendous views to the south across the the Vale of Glamorgan to the Bristol Channel some 5 miles away, looking over the nursery orchards to the east and west with a motorway to the north which provided a visual and noise intrusion.

The approach was to maximise the views from the living areas over the nursery and surrounding countryside.

The house provides a screen for the external spaces from the noise and visually from the motorway. The lounge with its four large windows leads onto a covered verandah protecting it from excessive summer solar gain.

Natural deep tone colours have been used externally throughout to provide a harmony of building and landscape.